Ferienwohnung Sonnenstrand Travemünde
Ferienwohnung "Sonnenstrand" in Travemünde nahe Sandstrand und Promenade
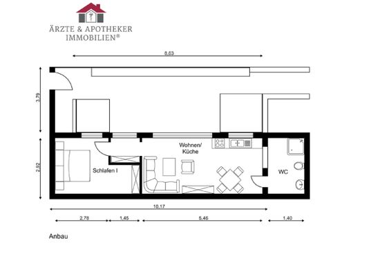
Die Ferienwohnung Sonnenstrand Travemünde ist eine 45 m² große Unterkunft im Parterre und eignet sich für bis zu 4 Personen. Mit insgesamt drei Zimmern, ein Schlafzimmer und ein Badezimmer bietet sie einen kompakten und zugleich gut nutzbaren Rahmen für einen erholsamen Aufenthalt an der Ostsee. Die Wohnung befindet sich in strandnaher Lage in Travemünde, nur 150 m vom Meer und 300 m vom Sandstrand entfernt. Einkaufsmöglichkeiten und Restaurants erreichen Sie jeweils nach etwa 150 m, die Stadt nach 300 m, den öffentlichen Nahverkehr nach 200 m und den Bahnhof nach 1000 m. Da vieles bequem erreichbar ist, ist ein Auto nicht notwendig.
Die Nichtraucherwohnung wurde 2015 erbaut und ist familienfreundlich sowie kinder- und babygeeignet. Auch Allergiker finden hier passende Voraussetzungen vor. Die Unterkunft verfügt über eine Heizung und bietet dank Sichtschutz an allen Fenstern ein angenehmes Maß an Privatsphäre. Fliegengitter ergänzen den Wohnkomfort. Im Wohnbereich mit Vinylboden stehen Ihnen eine Sofaecke mit Sofa und Sessel, ein TV mit Satellitenanschluss sowie ein Essbereich mit Esstisch zur Verfügung. Die offene Küche ist direkt in den Wohnraum integriert und praktisch ausgestattet. Dazu gehören Cerankochfeld, Backofen, Kühlschrank mit integriertem Gefrierfach, Kaffeemaschine, Nespresso-Espressomaschine, Wasserkocher, Toaster, Mixer sowie Küchenutensilien, Geschirr, Besteck und Geschirrhandtücher. Eine Erstausstattung ist ebenfalls vorhanden.
Das Badezimmer ist mit einer bodengleichen Dusche, WC, Waschbecken, Spiegel und Haartrockner ausgestattet. Warmes Wasser ist selbstverständlich verfügbar. Für den Aufenthalt stehen Ihnen zudem praktische Ausstattungsmerkmale wie Garderobe, Staubsauger, Bügeleisen, Bügelbrett, Ganzkörperspiegel, Abfalleimer und Rauchmelder zur Verfügung. WLAN und Internet sind vorhanden, sodass Sie auch vor Ort bequem online bleiben können.
Zur Unterkunft gehört außerdem eine Terrasse mit Gartenmöbeln, die sich für ruhige Stunden an der frischen Luft anbietet. Ein kontaktloser Check-in und Check-out ermöglicht eine flexible und unkomplizierte An- und Abreise.
Die Lage in Travemünde bietet Ihnen ideale Voraussetzungen für abwechslungsreiche Urlaubstage zwischen Strand, Bewegung und Kultur. In der näheren Umgebung finden Sie Möglichkeiten zum Schwimmen, Segeln, Windsurfen, Tauchen, Wasserski, Angeln, Radfahren, Joggen, Nordic Walking, Wandern und Spazierengehen. Ebenso sind Shopping, Sightseeing, Museen, Kirchen, Theater, Kino, Festivals und weitere Freizeitangebote gut erreichbar. Auch Spielplätze, Wellnessangebote und touristische Attraktionen befinden sich in der Umgebung.
Die Ferienwohnung Sonnenstrand Travemünde verbindet eine sehr gute Lage am Meer mit funktionaler Ausstattung und angenehmem Komfort für Paare, kleine Familien oder Gäste, die Travemünde bequem und strandnah erleben möchten. Sichern Sie sich Ihren Aufenthalt.
Das bietet die Ferienwohnung
Raumaufteilung
ca. 45 m² Wohnfläche
2 Zimmer:
-
1 Schlafzimmer
-
1 Wohnzimmer
-
1 Badezimmer
Belegungskapazität
Bis zu 4 Personen
-
1x Kleines Doppelbett (Breite kleiner 170 cm)
-
1x Schlafsofa
Ausstattung
- Sofaecke
- Essbereich
- Esstisch
- Sessel
- Schlafsofa
- TV Anzahl: 1
- TV
- TV Anschluss: Satellit
- WLAN
- Internet
- Art des Herdes: Ceran
- Herd
- Art der Küche: offen zum Wohnzimmer
- Backofenanschluss: Elektro
- Kühlschrank
- Espressomaschine
- Küchenutensilien
- Gefrierfach / -Schrank
- Wasserkocher
- Toaster
- Art der Espressomaschine: Nespresso
- Geschirr und Besteck
- Art des Gefrierfachs-/Schranks: Fach im Kühlschrank
- Mixer
- Geschirrhandtücher
- Kaffeemaschine
- Abfalleimer
- Backofen
- Verdunkelungsmöglichkeit
- Kleiderschrank
- Betten mit offenem Fußende
- Dusche
- Art der Dusche: bodengleich
- WC
- Anzahl der Duschen: 1
- Haartrockner
- Handtuchtrockner
- Spiegel
- Waschbecken
- Kinder sind willkommen
- Nicht-Raucher
- Sichtschutz für alle Fenster
- Esszimmer
- Garderobe
- Staubsauger
- Rauchmelder
- allergikergeeignet
- Ganzkörperspiegel
- Fliegengitter
- Bügelbrett
- Bügeleisen
- Erstausstattung
- Gartenmöbel
- Öffentlicher Parkplatz in der Nähe der Unterkunft
- Terrasse
- Terrasse/Balkon überdacht
- Abgeschlossenes Grundstück
- Entfernung Strand: 300
- Strand-Art: Sand
- Entfernung Meer: 150
- Entf. Einkaufsmöglichkeit: 150
- Entf. Stadt: 300
- Entf. Restaurant: 150
- Entfernung Fähre: 500
- Am Strand
- Entf. öffentlicher Nahverkehr: 200
- Entfernung Bahnhof: 1000
- Am Meer
- Entf. Flughafen: 75000
- Arzt in der Nähe
- Krankenhaus in der Nähe
- Bank / Geldautomat in der Nähe
- Supermarkt in der Nähe
Ihre Reisedaten
ausgewählt
verfügbar
nicht verfügbar
Bitte wählen Sie Ihre gewünschte Reisezeit über den Kalender.
Lage
Kurgartenstraße 48, 23570 Lübeck
Die Ferienwohnung Sonnenstrand Travemünde überzeugt mit einer hervorragenden Lage direkt am Meer in Travemünde. Der feinsandige Strand ist nur etwa 300 Meter entfernt, das Wasser sogar schon nach rund 150 Metern erreichbar. Auch Restaurants und Einkaufsmöglichkeiten befinden sich mit nur ca. 150 Metern ganz in der Nähe, während die Stadtmitte nach etwa 300 Metern bequem zu Fuß erreicht ist. Öffentliche Verkehrsmittel liegen nur 200 Meter entfernt, der Bahnhof ist rund 1 Kilometer entfernt – ein Auto ist daher nicht notwendig. Die Umgebung bietet beste Voraussetzungen für entspannte Strandtage, Spaziergänge, Shopping, Kultur und zahlreiche Wassersport- und Freizeitaktivitäten.
